






DECO ALTO
DB03220Description
Version épurée du poêle à bois traditionnel, le Déco Alto est idéal pour les espaces jusqu’à 2,100 pi². Ce grand modèle non catalytique dégage jusqu’à 75,000 BTU/h et est certifié selon les plus récentes normes environnementales. Ses lignes épurées, sa hauteur plus élevée que la moyenne et sa base avec espace de rangement intégré distinguent le Deco Alto des autres appareils sur le marché.
Inclus : piédestal avec rangement à bûches, déflecteur d'air arrière, tablette à cendres, tiroir à cendres, contrôle d’air
Caractéristiques :
▪ Temps de combustion jusqu’à 8 heures
▪ Bûches de 20"
▪ Chambre à combustion de 2.4 pi³
▪ Porte en fonte avec pentures ajustables et vitre en verre céramique
▪ Dessus en acier robuste 5/16" renforci d’un bouclier thermique en acier inoxydable
▪ Système autonettoyant de la vitre (airwash) pour une vue plus nette des flammes
▪ Certifié EPA
▪ Fièrement fabriqué au Québec
▪ Garantie à vie limitée
▪ Certifié pour installation en maison mobile et alcôve
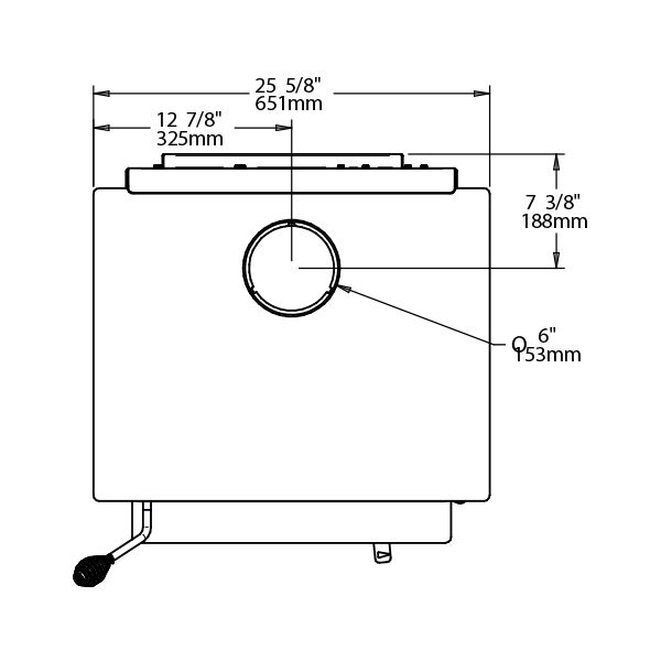
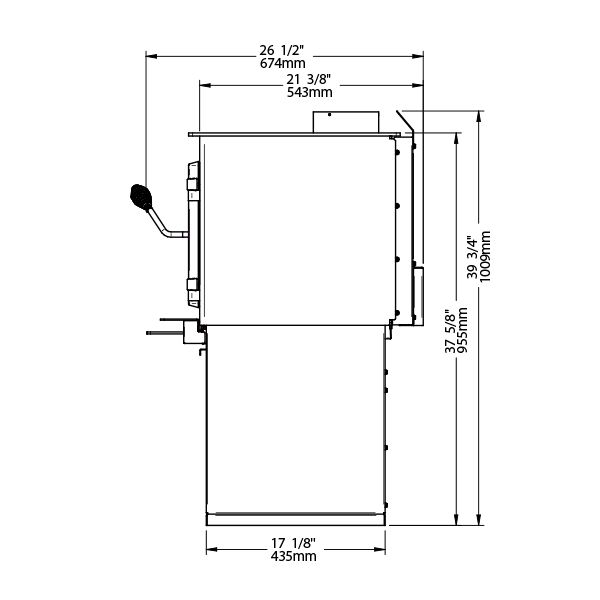
Toute installation doit se faire à la lumière des données et des graphiques détaillés dans le manuel.
Options
Spécifications
Manuels et documents
Détaillants autorisés
Soyez le premier à laisser un avis








